Artà:
Plot of land with new build project for apartment building plus shop
Property ID: 8097












Plot size:
1.250 sq. m.
Price:
895.000 €
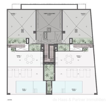
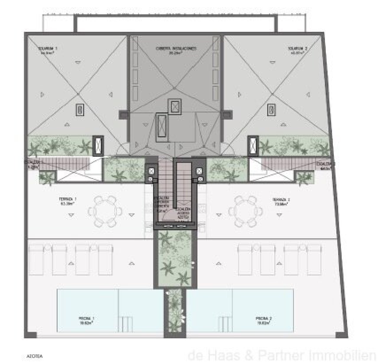
The new construction project is located on the outskirts of Artà, yet within walking distance of all the village's shops and restaurants. The 1,250 m² plot has a project for the construction of 2 duplex penthouses (177 m²) with private roof terrace and pool (approx. 160 m²), as well as 2 apartments on the first floor (177 m² living space) with a terrace (27 m²) and also with high-end fittings. Each flat has 3 bedrooms with 3 en-suite bathrooms, as well as a large living area with floor-to-ceiling windows, a fireplace and an open-plan kitchen. Each flat also has 2 underground parking spaces. A shop is planned for the ground floor. Due to their location on the outskirts of the village, all flats offer beautiful views of the countryside and mountains.
It is possible to purchase the property with the project and apply for renewal of the building licence, as it has expired. Of course, a completely different project can also be applied for.
Planned features are Endesa electricity, mains water, lift from underground car park to all flats, underfloor heating via air/water heat pump, fireplace, hot/cold air conditioning, Climalit windows, solar hot water, water softener, satellite TV, fibre optic internet and much more.
Type of usage: Living
Development: Opened
May be developed from: Built according to construction plan
Recommended use: Apartment building
Surroundings: Shopping facilities, Golf course, Close to the beach
Views: Distant view
Subject to commission: no
There is no commission for the buyer.
The information provided by us is based on information provided by the seller or the seller. For the correctness and completeness of the information, no responsibility or liability can be accepted. An intermediate sale and mistakes are reserved.
We refer to our terms and conditions. Through further use our services do you explain your knowledge and consent.
You might also like
Plot in Cala Ratjada with large garden and great sea view
Large plot with unique view and current building permission
07570 Artà
Islas Baleares























