Artà:
Grundstück mit Neubauprojekt für Mehrfamilienhaus plus Ladenlokal
Objekt-Nr.: 8097












Grundstück ca.:
1.250 m²
Preis:
895.000 €
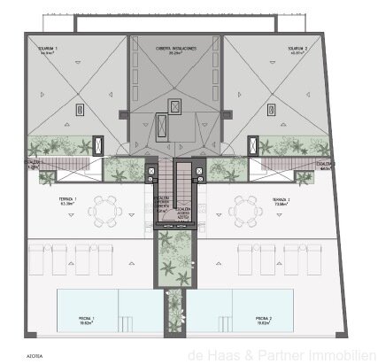
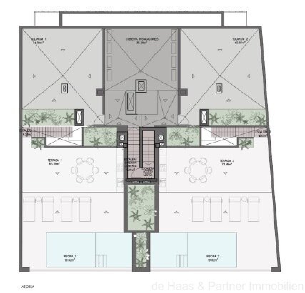
Das Neubauprojekt liegt am Ortsrand von Artà und doch fußläufig zu allen Einkaufsmöglichkeiten und Restaurants des Dorfes. Das Grundstück mit 1250 m² verfügt über ein Projekt, das den Bau von 2 Penthäusern im Duplex - Stil (177 m²) mit privater Dachterrasse und Pool (ca. 160 m²), sowie 2 Wohnungen in der ersten Etage (177 m² Wohnfläche) mit einer Terrasse (27 m²) und ebenfalls mit gehobener Ausstattung beinhaltet. Die Wohnungen verfügen über je 3 Schlafzimmer mit 3 en-Suite Bädern, sowie über einen großen Wohnbereich mit bodentiefen Fenstern, Kamin und einer offenen Küche.
Jede Wohnung verfügt außerdem über 2 Tiefgaragenstellplätze. Im Erdgeschoss ist ein Ladenlokal geplant. Durch die Ortsrandlage bieten alle Wohnungen einen schönen Blick auf die Landschaft und die Berge.
Es besteht die Möglichkeit, das Grundstück mit Projekt zu erwerben und die Erneuerung der Baulizenz zu beantragen, da diese abgelaufen ist. Natürlich kann auch ein ganz anderes Projekt beantragt werden.
Geplante Ausstattungsmerkmale sind Endesa Strom, Stadtwasser, Aufzug von Tiefgarage in alle Wohnungen, Fußbodenheizung über Luft/Wasser Wärmepumpe, Kamin, Klimageräte kalt/warm, Climalit Fenster, Warmwasser über Solar, Entkalkungsanlage, SAT – TV, Internet durch Glasfaser u.v.m.
Nutzungsart: Wohnen
Erschliessung: erschlossen
Bebaubar nach: Bebauung nach Bebauungsplan
Empfohlene Nutzung: Mehrfamilienhaus
Umgebung: Einkaufsmöglichkeit, Golfplatz, Strandnähe
Ausblick: Fernblick
Provisionspflichtig: nein
Für den Käufer fällt keine Provision an
Die von uns gemachten Informationen beruhen auf Angaben des Verkäufers bzw. der Verkäuferin. Für die Richtigkeit und Vollständigkeit der Angaben kann keine Gewähr bzw. Haftung übernommen werden. Ein Zwischenverkauf und Irrtümer sind vorbehalten.
Wir weisen auf unsere Allgemeinen Geschäftsbedingungen hin. Durch weitere Inanspruchnahme unserer Leistungen erklären Sie die Kenntnis und Ihr Einverständnis.
Das könnte Ihnen auch gefallen
Grundstück mit genehmigten Bauprojekt und in Stadtnähe
07570 Artà
Islas Baleares





















