Artà:
Terreno con proyecto de nueva construcción para edificio de viviendas y local comercial
Referencia: 8097












Terreno aprox.:
1.250 m²
Precio:
895.000 €
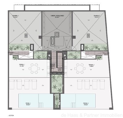
El nuevo proyecto de construcción se encuentra a las afueras de Artà, pero a poca distancia a pie de todas las tiendas y restaurantes del pueblo. La parcela, de 1250 m², cuenta con un proyecto que prevé la construcción de 2 áticos dúplex (177 m²) con terraza privada en la azotea y piscina (aprox. 160 m²), así como 2 apartamentos en la primera planta (177 m² de superficie habitable) con terraza (27 m²) y equipamiento de alta gama. Los apartamentos disponen de 3 dormitorios con 3 baños en suite, así como de una amplia zona de estar con ventanas de suelo a techo, chimenea y cocina abierta.
Cada apartamento dispone además de 2 plazas de aparcamiento subterráneo. En la planta baja está prevista la construcción de un local comercial. Gracias a su ubicación en las afueras, todos los apartamentos ofrecen unas bonitas vistas al paisaje y a las montañas.
Existe la posibilidad de adquirir el terreno con el proyecto y solicitar la renovación de la licencia de obras, ya que esta ha caducado. Por supuesto, también se puede solicitar un proyecto completamente diferente.
Características previstas son electricidad de Endesa, agua municipal, ascensor desde el garaje subterráneo a todos los apartamentos, calefacción por suelo radiante mediante bomba de calor aire/agua, chimenea, aire acondicionado frío/calor, ventanas Climalit, agua caliente mediante energía solar, sistema de descalcificación, televisión por satélite, Internet por fibra óptica y mucho más.
Tipo de uso: Vivienda
tipo de terreno: Urbanizado
Edificabilidad: Edificación según plan urbanístico
Uso recomendado: Casa plurifamiliar
entorno: zona de tiendas, Campo de golf, proximidad al mar
Vista: Vista Panorámica
Comisionable: no
No hay comisión para el comprador.
La información proporcionada por nosotros se basa en la información proporcionada por el vendedor o el vendedor. Para la exactitud e integridad de la información, ninguna responsabilidad puede ser aceptada. Una venta intermedia y los errores son reservados.
Nos referimos a nuestros términos y condiciones. A través de más utilizar nuestros servicios usted explicar su conocimiento y consentimiento.
También te podría gustar
Parcela en Cala Ratjada con amplio jardín y gran vista al mar
07570 Artà
Islas Baleares
























